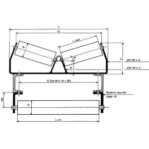
Cage d’écureuil en barrettes métalliques préalablement formées
Caractéristiques :
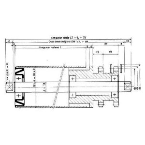
- Dimensions L, EM, LT suivant norme E53300, NFE 53301
- Rouleaux de base Ø70
- Autre L à la demande (préciser EM, LT et E)
- Dans tous les cas d peut être 20/25/30
Poids des rouleaux (kg) :
Type ASC
Type ASA
Type ACE
Bande
L
EM
LT
d=20
d=25
d=20
d=25
d=20
d=25
400
475
508
540
7
6.5
11.1
500
575
608
640
8
7.5
12.5
600
675
708
740
9
8.5
13.9
650
720
758
790
11
9
14.5
800
870
908
940
13
18
12
17
16
21
1000
1110
1148
1180
17
22.5
15
21.5
17.5
23.5
1200
1310
1348
1380
26
17.5
25.3
28
1400
1510
1548
1580
29.5
29
33
1600
1710
1748
1780
33
33
38
Informations supplémentaires :
Pour plus de détails concernant les anticolmatants à spires et à barettes, veuillez vous reporter au document PDF ci-dessous.
Demandes de devis pour Anti colmatant en barrettes métalliques
20/10/2025
2 rouleaux de40 à 50 cm de longue et de diamètre 20 a 30 cm merci
19/10/2019
Le prix svp
14/03/2016
Bonjour, je recherche un tambour cage d"écureuils diamètre 150m/m longueur 520m/m avec arbre traversant de 610m/mx25m/m. Arbre fixe et roulements monter entre arbre et tambour. tambour et arbre inox . merci cordialement.