Vous disposez d'une crèche ou micro-crèche déjà créée, vous pouvez bénéficier d'une
location et installation de climatiseur.
Pour bénéficier de cette offre, il est nécessaire de faire parvenir :
- Vos 3 derniers bilans
- Votre Kbis
Les climatiseurs sont bien conformes aux normes et sécurités exigées dans les crèches.
-
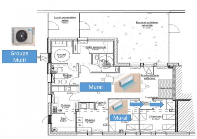
Caractéristiques générales :
Ces solutions sont proposées pour équioer vos structures :
Solution Murale :
- Fourniture et pose d’une unité Mural dans espace d’activité soit en :
Condensation à air (Froid – Chaud thermodynamique) installation en extérieur avec autorisation
Condensation à eau (Froid seul) installation en intérieur (faux plafond cuisine par exemple)
- Télécommande infrarouge
Solution Cassette :
- Fourniture et pose d’une unité Cassette 4 voies dans espace d’activité soit en :
Condensation à air (Froid – Chaud thermodynamique) installation en extérieur avec autorisation
Condensation à eau (Froid seul) installation en intérieur (faux plafond cuisine par exemple)
- Télécommande filaire
Solution gainable :
- Fourniture et pose d’une unité Gainable raccordée à des bouches de soufflage dans espace d’activité (possibilité de prévoir des bouches de soufflage dans d’autres pièces type bureau, entrée, salle personnel) soit en :
Condensation à air (Froid – Chaud thermodynamique) installation en extérieur avec autorisation
Condensation à eau (Froid seul) installation en intérieur (faux plafond cuisine par exemple)
- Télécommande filaire
Solution Multi Split :
- Fourniture et pose d’une solution avec deux, trois, quatre, ou cinq unités intérieures
- Possibilité en mural, cassette, et gainable suivant configuration des locaux et choix du client
- Condensation à air (Froid – Chaud thermodynamique) installation en extérieur avec autorisation
- Télécommande infrarouge ou filaire dans chaque pièce