L'abri vélo design est une solution moderne et fonctionnelle pour le stationnement des cycles en extérieur.
Conçu pour s'intégrer dans les environnements urbains, il allie esthétique et robustesse.
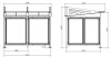
Cet abri vélo urbain dispose d'une structure en acier avec des poteaux principaux de 100 x 60 mm et des poteaux de façade de 40 x 40 mm.
Sa toiture est composée de traverses en tubes acier de 50 x 30 mm et de panneaux en polycarbonate alvéolaire de 10 mm d'épaisseur, traités anti-UV pour une protection efficace contre les intempéries.
Le système en porte-à-faux permet d’optimiser l’espace tout en garantissant une installation stable et sécurisée.
Les dimensions standard de l’abri vélo extérieur sont de 2700 mm de largeur, 2097 mm de hauteur et 2323 mm de profondeur.
Pour répondre à des besoins plus étendus, il est possible d'ajouter un module complémentaire de 1300 mm de largeur, permettant une extension à l'infini.
L'installation se fait par scellement direct, avec des poteaux de façade fixés sur platines galvanisées et des pieds réglables en hauteur pour s’adapter aux contraintes du terrain.
Nous proposons d'effectuer la pose de votre produit, merci de nous demander un devis.
Caractéristiques techniques
Capacité de stationnement
Jusqu'à 6 vélos pour un module (en fonction du support ou de l'appui vélos choisi)
Toiture
Traverses en tubes acier 50 x 30 mm, panneaux en polycarbonate alvéolaire épaisseur 10 mm traité anti-UV
Demandes de devis pour Abri vélo design - 6 vélos - L.2700 mm x H.2097 mm x P.2323 mm
22/09/2025
Bonjour, Nous vous remercions de nous transmettre votre meilleure proposition pour la fourniture de : 9.2.5 - ABRI VELOS 9.2.5.1 - Abri vélos, type monopente avec couverture polycarbonate - Dim : 4000 m/m de long x 2400 m/m de largeur : Fourniture d’un abri 2 roues, composé de : poteaux tubulaires (section type 140x140x ép. 4mm) en acier avec platine de fixation en pied, de type platine soudée traverse tubulaire centrale en acier fixées entre poteaux, sujétion de platine soudées aux extrémités et goussets selon nécessité poutres / portiques en solution métallique PRS ou autres, fixation mécanique sur les poteaux, sujétions de platines soudées et chevilles adaptées ; à raison d"une conception avec 3 poutres pannes (support de couverture), de type profilés tubulaires de sections adaptées aux portées et dimensions de l"ouvrage ; à raison d"une panne faîtière, une panne intermédiaire et une panne sablière (à minima) couverture rapportée de type monopente en panneaux alvéolaires polycarbonates (ép. 16mm). Assemblage des panneaux par serreurs adaptés évacuation des eaux pluviales collectées par l"intermédiaire d"une chéneau filant rapporté en tête de traverse, une descente extérieure en aluminium laqué (implantée au droit d"un poteau) avec sujétion de moignon entre chéneau et descente. Façon de trop plein en complément de la descente. Toutes les soudures seront parfaitement meulées. Fixation et assemblage par visserie inox. Tous les profilés métalliques sont de finition thermolaquée en atelier, teinte RAL 7016. Pose à charge à charge du présent lot sur les crosses d’ancrage fournies au lot MACONNERIE BETON ARME (à charge du massif béton). Coordination à prévoir en conséquence. Dimensions de l"ouvrage : selon plan de masse, et selon les standards du fabricant. Nota : les massifs sont dus au titre des travaux du lot MACONNERIE - BETON ARME, crosses d"ancrage à fournir en conséquence et toutes coordinations à prévoir se
24/06/2025
Merci de m’envoyer un devis cordialement
08/05/2025
Abris de velo
29/10/2024
je souhaiterais avoir un devis pour un Abri cycles initial (sans bardage), à 3 poteaux, pour couvrir une surface de 2.50x1.80m. Merci de me faire parvenir vos propositions.
24/09/2024
proposition tarifaire pour 1 abri vélo ouvert toit plat sur 5ml merci d"inclure tous les modéles .
02/11/2023
sur la référence 3665929 je souhaiterai un devis avec les côté mais sans le fond.
22/01/2022
Réalisation d"un abri (longueur 5 a 6 m)pour 15 vélos dans la cour d"une copropriété située a Paris.
26/04/2021
Bonjour, J"ai besoin d"équiper un immeuble de bureau avec un abris vélo de 7900 mm de long par 2300 mm de profondeur. j"ai besoin du matériel et de sa mise en oeuvre sur place à Canéjan (33610). Cordialement
07/01/2021
Bonjour, j"aurais besoin d"un devis pour 1 abri parking toit en plexiglas pour vélo 6 places de 4 m large par 2,50 m en Gris anthracite en acier et en aluminium pour comparer .Cdlt
26/11/2019
demande de devis pour 1 abri vélo 10 /12 vélos
09/10/2019
je souhaiterais avoir un devis pour un abri pour 8 vélos et 2 motos. Merci de me faire parvenir vos propositions.
22/07/2019
Bonjour, j"ai besoin d"un devis conforme pour le soumettre. et d"une doc technique Merci Mr GABBI
14/11/2018
Bonjour, j’ai besoin d’un devis pour 10 abris à vélo avec toiture en polycarbonate sur 10ml par 2,4ml EN EPOXY RALL 6005, fermé sur 3 cotés. Quantité: 10 abris avec les même caractéristiques. il nous faut une livraison pour Fin 2018( le plus rapidement possible).
13/11/2018
Bonjour, Le lycée réalise une étude en vue d"installer un abri permettant de ranger 4/5 vélos et 2 motos. Pouvez-vous m"établir le chiffrage correspondant en intégrant un rack pour les vélos et la pose svp ? un plan des différents modèles besoin prévu début d"année. Cordialement
05/11/2018
Abri vélos 2 roues largeur : 5 Mètres.
04/04/2018
Abri vélos fermé pour 4, 6 ou 8 vélos. Merci de nous faire parvenir un plan de différents modèles.
30/03/2018
bonjour nous aurions voulu des renseignement sur un abri vélo (projet prévu 2 a 3 mois) capacité : 10 vélos