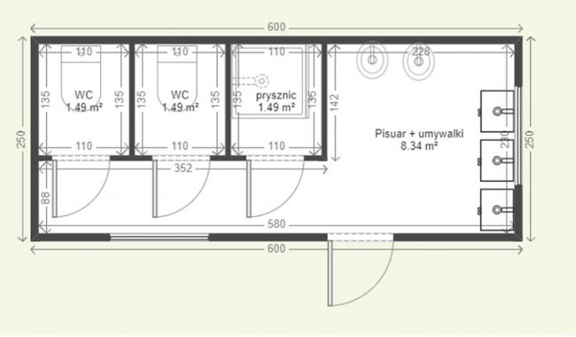
Container 6x2,5 sanitaire WC + douche + WCÉquipements inclusLe conteneur sanitaire est bien équipé pour accueillir plusieurs utilisateurs simultanément grâce à ses installations sanitaires modernes :2 WC
1 douche : Receveur de douche (90x90 cm).
2 urinoirs
3 lavabos
Voir la description détaillée
Imprimer
Description
Dimensions et poids
Longueur extérieure : 6,0 m
Largeur extérieure : 2,5 m
Hauteur intérieure : 2,6 m à 2,5 m
Poids : 1600 kg
Équipements inclus
Le conteneur sanitaire est bien équipé pour accueillir plusieurs utilisateurs simultanément grâce à ses installations sanitaires modernes :
2 WC
1 douche : Receveur de douche (90x90 cm).
2 urinoirs
3 lavabos
Spécifications techniques
Construction : Le conteneur est construit à partir de panneaux sandwich (feuille-panneau polystyrène), assurant une isolation thermique et une solidité optimales.
Murs, toiture et plancher : Panneaux sandwich de 100 mm d’épaisseur avec une âme en polystyrène, offrant une transmission thermique de 0,38 W/m²K.
Toiture : À une pente, permettant une évacuation efficace de l’eau.
Plancher : Panneau sandwich + OSB de 15 mm avec un revêtement en PVC de 2,2 mm pour un sol résistant et facile d’entretien.
Porte extérieure : En acier, isolée, avec des dimensions de 80 cm de largeur et 200 cm de hauteur.
Fenêtres : Deux fenêtres en PVC UR à double vitrage, de 120 cm de largeur et 60 cm de hauteur, pour une bonne ventilation et luminosité.
Ventilation : Trois grilles de ventilation assurent une circulation d’air adéquate dans le conteneur.
Installation électrique :
Fusibles
2 prises
1 interrupteur
1 luminaire
Installation d'eau et d'égouts :
Arrivée d'eau : Vanne de 1/2 pouce.
Sortie des eaux usées : Tuyau de 110 mm pour une évacuation efficace.
Avantages
Prêt à l'emploi : Ce conteneur sanitaire est entièrement équipé et fonctionnel dès la livraison, facilitant son installation et utilisation immédiates.
Isolation thermique efficace : Grâce à ses panneaux sandwich, il garantit un confort thermique optimal, quelle que soit la saison.
Facilité de transport : Sa conception modulaire permet un transport et une relocalisation simples, offrant une grande flexibilité d’utilisation.
Durabilité à long terme : Les matériaux utilisés assurent une longue durée de vie sans nécessiter de maintenance coûteuse.