Cadre de transport : Profils courbés à froid en tôle galvanisée (0,5 mm)
Toiture : Feuille lisse galvanisée extérieure de 0,5 mm avec une pente de 2%. Isolation en laine minérale pressée de 100 mm.
Couverture : Plaque OSB de 15 mm avec finition en Rigips ou panneaux de PVC blanc.
Parois Intérieures : Feuille de trapèze galvanisée T6 avec couche de protection colorée des deux côtés, isolation en laine de façade pressée de 100 mm, finition en bois séchant ou panneaux PVC.
Parois de Cloisonnement : Construction en bois imprégné, plaque OSB de 12 mm, finition en laine d'isolation phonique ou panneaux PVC.
Sol : Tôle galvanisée de 0,5 mm, isolation en laine de façade pressée de 100 mm, plaque OSB de 22 mm, structure en bois et plancher en PVC.
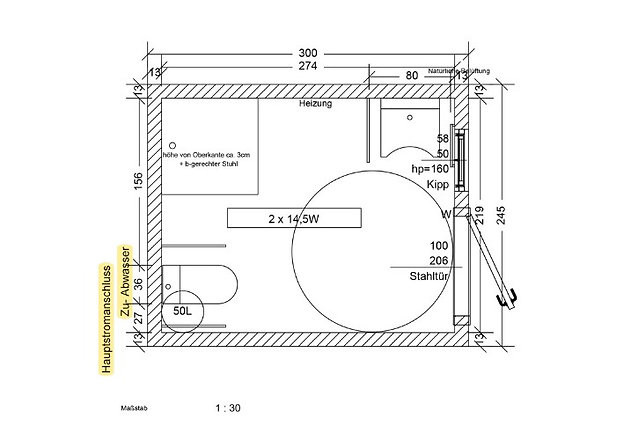
Porte Extérieure : 1000 mm x 2060 mm, porte en acier.
Équipements Inclus
Chauffage : 1x chauffage électrique
Fenêtre : 1 fenêtre (L: 820 mm x H: 500 mm)
Éclairage : 2x lampadaires LED
Installations Sanitaires :
1x toilettes (adaptées aux personnes handicapées)
1x douche (accès de 3 cm, inachevé)
1x lavabo (accès adapté aux personnes handicapées)
1x chauffe-eau dans l'armoire
Équipement Standard
Ventilation : 1 stk. (naturelle)
Installation Électrique :
Ligne électrique et câble, en canaux en plâtre en continu. Prises électriques YDY 3 x 2,5 mm, systèmes d'éclairage des tuyaux JY 3 x 1,5 m.
Boîte de commande en PE avec boîtier hermétique ou fiche 16A – 32A CEE sur la paroi extérieure.
Boîte de distribution principale pour chaque circuit, avec fusible.
Double prises 230V.
2x éclairages LED 14,5 W.
1 stk. compteur électrique.
1 stk. chauffage électrique avec fusibles séparés.
Raccordements Eau et Eaux Usées : Installation complète dans les parois, évacuation des eaux usées en tuyaux de 110 mm, alimentation en eau PE32 avec vanne, tuyaux en PVC soudés.