Ce portique à conteneur sur rails est destiné aux parcs à conteneurs portuaires et aux stations de transfert de conteneurs ferroviaires.
Il est idéal pour la manutention, le chargement et déchargement des conteneurs.
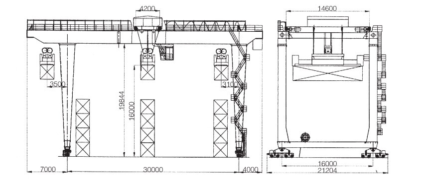
Vous avez le choix entre un portique sans porte-à-faux, un portique à simple porte-à-faux ou un portique à double porte-à-faux.
Le portique est disponible également sous un modèle de rotation de chariot, un modèle de rotation du grappin, et un modèle de rail de roulement.
-
Caractéristiques Techniques :
- Marque : Weihua
- Modèle : MG
- Lieu d’origine : Chine
- Certificats : ISO 9001, ISO 14001, OHSAS, 18001 GB/T
- Poids de levage avec palan monorail : 20 t
- Poids de levage avec palan de type chariot birail : 100 t
- Température de fonctionnement : -20 °C à 40 °C
- La conception, la fabrication et l'inspection mettent en œuvre les normes DIN, FEM, IEC, AWS, GB et autres normes nationales et étrangères.
- Adoptant une conversion de fréquence CA entièrement numérique et une technologie spéciale de régulation de la vitesse de contrôle PLC, un contrôle flexible et une haute précision.
- Alarme coup de vent, balayage dynamique de sécurité, protection contre les surcharges et autres instructions et dispositifs de sécurité, assurant efficacement la sécurité des opérateurs et des marchandises.
- Système de gestion de service intelligent CMS pour surveiller l'état de fonctionnement du portique en temps réel.
- Technologie de retour d'énergie électrique, technologie flexible de boîtier intelligent et de goupille de verrouillage, économie d'énergie et protection de l'environnement, pratique et efficace.
|
Capacité de levage sous l'épandeur (t) |
35 |
41 |
70 |
|
Distance de base (m) |
10/16 |
|
portée(m) |
30/35/40 |
|
Hauteur de levage (m) |
12.5/15.3/18.3 |
|
Stack Layers/ Empiler les couches |
Stack 1 over3/stack 4 over 1/stack 5 over 1 |
|
Spécification du conteneur |
20,,40,,45, |
20,,40,,45, |
Double 20,,20,,40,,45, |
|
Vitesse |
Levage (pleine charge/charge vide) (m/min) |
13/20 |
13/20 |
20/40 |
|
Déplacement du portique (plein chargement/vide chargement) (m/min) |
45 |
45 |
45 |
|
Déplacement du chariot (m/min) |
70 |
70 |
70 |
|
nombre de roue |
16/20 |
16/20 |
24 |
|
Charge de roue maximale (kN) |
250 |
280 |
300 |
|
Source de courant |
Selon vos besoin
|
Options sélectionnables
- Système anti-balancement de résistance flexible bidirectionnel de configuration standard, système de micromouvement anti-balancement de conversion de fréquence multifonction en option ou système électronique anti-balancement.
- Technologie de contrôle d'optimisation intelligente pour la trajectoire de fonctionnement.
- Technologie de contrôle automatique ou semi-automatique.
Sécurité
- Système de gestion de service intelligent CMS, surveillance en temps réel de l'état de fonctionnement de chaque mécanisme d’équipement.
- Détection automatique des défauts et affichage des données en temps réel, sécurité et fiabilité.
- Technologies de base appliquées telles que le positionnement automatique de la course, l'atterrissage flexible sur les conteneurs, le contrôle intelligent de la trajectoire, la protection de sécurité anti-accroc à inclinaison intelligente, etc.
- Une variété de mesures de sécurité, y compris une alarme de vent fort, un balayage dynamique de sécurité.