Afin d’assurer la sécurité des toitures de vos bâtiments (immeubles, entreprises…), nous proposons nos gardes corps pour toiture considérés comme outil de protection collective antichute.
Fabriqué en aluminium, notre garde-corps robuste se fixe facilement. Plusieurs configurations sont disponibles.
Caractéristiques :
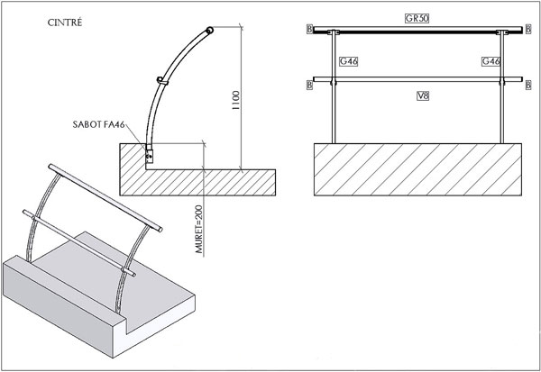
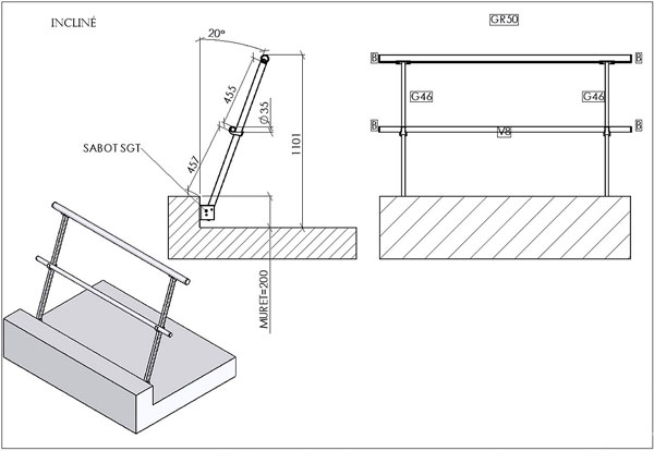
- Fabrication en aluminium 6060 AGS T5
- Anodisé ou thermolaqué, conforme aux labels Qualicoat, Qualimarine et Qualanod
- Fixation : sur muret à la française, en applique contre muret à l’anglaise, pose sur dalle par système de plots
- Garde corps autonome et étanche
- Remplissage des gardes corps aux choix : tôle, barreaudage, lisse horizontale ou vitré
- Types de garde-corps disponibles : Droit, incliné et cintré
Nous proposons une fabrication sur mesure pour répondre à tous vos besoins en protection de toiture.
N'hésitez pas à nous contacter pour avoir plus d'informations concernant nos gardes corps.
Demande de prix pour Garde corps terrasse en aluminium sur mesure
17/06/2022
Bonjour 134 ml de garde-corps aluminium Norme NF E 85-016, 1 main courante + 1 lisse, pose à l"anglaise, compris 12 angles et bouchons Intervention dans le 93 Bien à vous
17/06/2022
Bonjour 134 ml de garde-corps aluminium Norme NF E 85-016, 1 main courante + 1 lisse, pose à l"anglaise, compris 12 angles et bouchons Bien à vous
29/10/2020
Garde corps toiture
03/09/2019
3 garde corps toiture droit a) 6.7 m de longueur b) 2.10 de longueur c) 2.10 de longueur Merci.
09/02/2016
10 ml lineaire de garde corps type pont de bateau en Acier galvaniser avec une lisse en INOX merci de me repondre rapidement Bien cordialement Alexandre Busser Batipro47